Stadtnahe Ruheoase: 2 Ebenen, Balkon mit Grünblick - ca. 80 m² Wohn-/Nutzfläche!

Eckdaten

  • Art Maisonettewohnung
  • Lage 22159 Hamburg
  • Kaufpreis 235.000,00
  • Wohnfläche ca. 80
  • Zimmer 3
  • Baujahr 1963
  • Heizungsart Zentralheizung
  • Einbauküche ja
  • Vermietet ja
  • Bezugstermin Nach Absprache
  • Bodenbelag Fliesen Laminat
  • Ausstattung des Bades Dusche
  • Immobilien-ID 211
  • Provision 3,125 % inkl. MwSt.
Wohntraum Real Estate GmbH
Möllner Landstraße 59, 22113 Oststeinbek
Maximilian Grupe

Immobilienmakler

Teilen

Immobilie

DIE HIGHLIGHTS:
-Maisonette über zwei Ebenen - Wohnen unten, Schlafen/Arbeiten oben
-Heller Wohn-/Essbereich mit Zugang zum Balkon und Blick ins Grüne
-Balkon mit Holzdielen und Sichtschutzgeländer - ideal für entspannte Stunden
-Nutzbare Fläche im Dachgeschoss (Schlafen & Homeoffice) mit Dachflächenfenstern (siehe Wichtige Hinweise)
-Clever geplanter Grundriss: Offen, gut strukturiert und optimal genutzt - Wohlfühlen auf jedem Quadratmeter!
-Ruhige, grüne Nachbarschaft und gepflegte Gesamtanlage

ZUM WOHNHAUS:
-Gepflegtes Mehrfamilienhaus 1963 erbaut
-2001 Dachgeschoss aufgestockt (siehe Wichtige Hinweise)
-Freundlich angelegte Grünflächen rund ums Haus
-Mehrfamilienhaus mit 12 Einheiten

ZUR WOHNUNG:
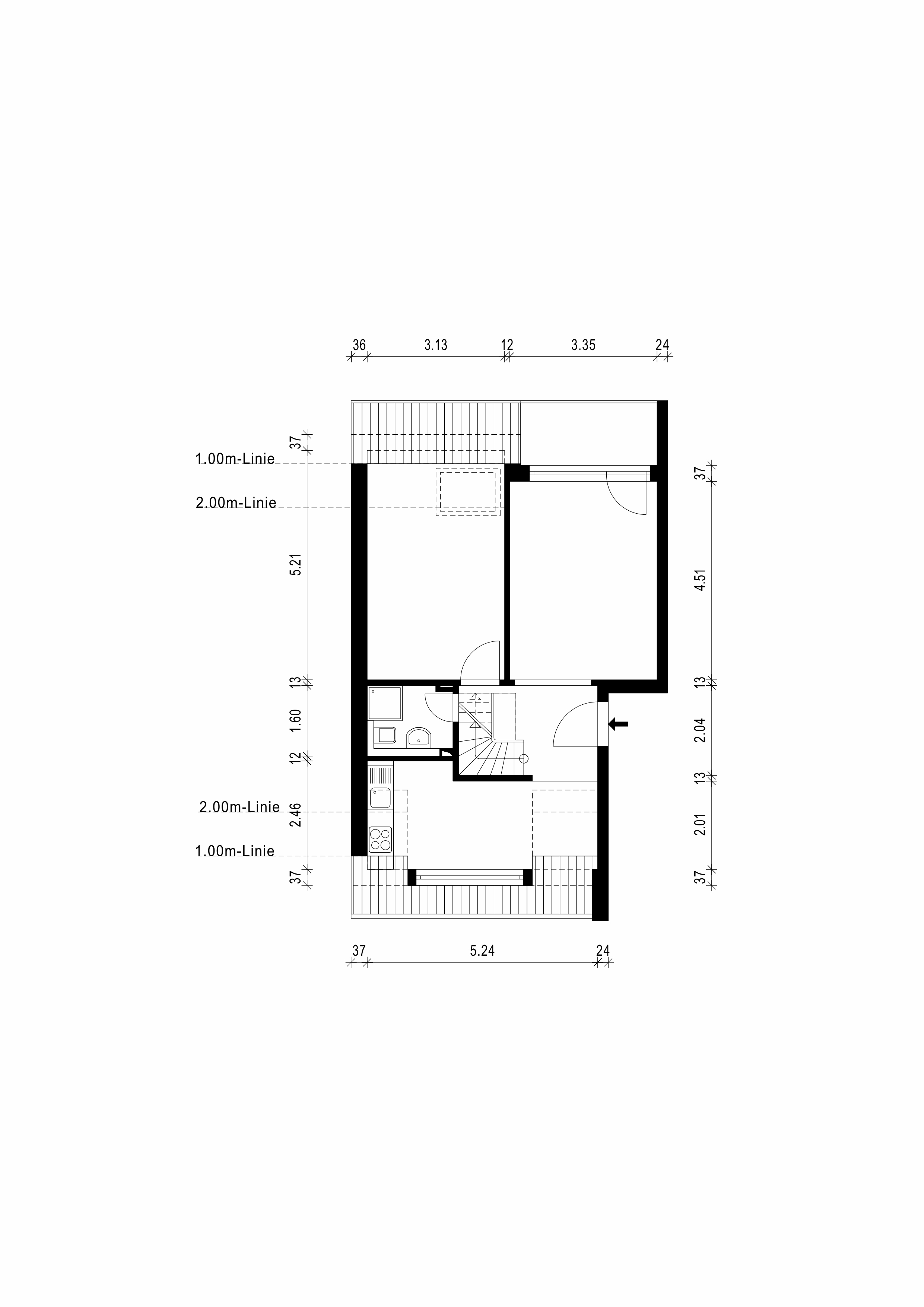
-Eingangs-/Wohnebene: Diele, modernes Duschbad, Kinder-/Gästezimmer, separate Küche, Wohn-/Essbereich mit Balkonausgang
-Obere Ebene: Schlafzimmer, Arbeitsbereich sowie praktischer Abstellraum unter der Schräge
-Einbauküche mit weißen Fronten, Spülmaschine, Herd/Backofen und Stellplatz für die Waschmaschine
-Bodenbeläge: Fliesen in Diele/Küche/Bad, wohnlicher Laminatboden in Wohn- und Schlafbereichen
-Gepflegtes Duschbad, hell gefliest mit Glaskabine
-Zweifach Verglaste Kunststofffenster (2012), Dachflächenfenster im DG sorgen für viel Tageslicht
-Balkon in ruhiger Ausrichtung mit Blick über die gepflegten Gartenflächen
-Heizungsart: Gas-Zentralheizung (2013)

Lage

Ruhig wohnen und dennoch hervorragend angebunden: Diese Lage im Hamburger Nordosten, im Stadtteil Farmsen-Berne, verbindet grünes Umfeld mit kurzen Wegen in die City. Die gewachsene Nachbarschaft ist geprägt von Einfamilienhäusern und kleinen Wohnanlagen und bietet ein angenehmes, familienfreundliches Wohnambiente.

Die Anbindung an den öffentlichen Nahverkehr ist sehr gut. Die Bushaltestelle Swebenhöhe am Bramfelder Weg liegt nur wenige Schritte entfernt und verbindet schnell zu den U-Bahn-Stationen Farmsen und Berne auf der U1. Von dort erreichen Sie die Hamburger Innenstadt in rund 22 bis 25 Minuten. Autofahrer profitieren von der Nähe zur B431 und den wichtigen Ausfallstraßen in Richtung City und Umland.

Für den täglichen Bedarf stehen vielfältige Einkaufsmöglichkeiten zur Verfügung. Der Einkaufstreffpunkt Farmsen am Berner Heerweg mit Supermärkten, Drogerie und weiteren Geschäften ist bequem erreichbar. In der Umgebung finden Sie zudem Cafés, Restaurants, Ärzte und Apotheken.

Grün- und Freizeitflächen liegen in unmittelbarer Nähe. Der Berner Gutspark mit altem Baumbestand, Wiesen und Wegen entlang von Deepenhorngraben und Berner Au lädt zu Spaziergängen und sportlichen Aktivitäten ein. An warmen Tagen sorgt das Strandbad Farmsen mit Sandstrand und großer Liegewiese für Erholung.
Familien schätzen die gute Versorgung mit Kindertagesstätten und Schulen. Das Gymnasium Farmsen sowie weitere Bildungseinrichtungen liegen nur wenige Minuten entfernt.

Die Lage bietet eine ausgewogene Kombination aus Naturnähe, urbanem Komfort und zuverlässiger Verkehrsanbindung und ist damit ideal für alle, die entspannt wohnen und gleichzeitig flexibel in Hamburg unterwegs sein möchten.

Ausstattung

Vermietet Balkon vorhanden Einbauküche

Sonstiges

Wichtige Hinweise:
1. Bitte beachten Sie, dass weder die Verkäufer noch wir als Makler für die Genauigkeit der angegebenen. Wohnfläche haftbar gemacht werden können. Jeder potenzielle Käufer hat auf Anfrage die Möglichkeit, die Immobilienfläche eigenständig zu vermessen.
2. Die Wohnung verfügt über insgesamt ca. 80 m² Wohn-Nutzfläche. Darin enthalten sind ca. 30 m² Nutzfläche. Diese Fläche ist nicht als vollwertige Wohnfläche anzusehen, wurde jedoch bereits in der Kaufpreisgestaltung berücksichtigt. Im Falle einer Vermietung, darf diese Fläche nicht vermietet werden.
3. Die Wohnung ist derzeit seit 2018 unkompliziert vermietet. Es liegt eine Mietaufhebungsvereinbarung vor. Diese sieht vor, dass die Wohnung im Falle einer Eigenbedarfskündigung durch den neuen Eigentümer spätestens zum Ende des fünften Monats nach entsprechender Anzeige und Absprache frei geliefert wird.
4. Das Mehrfamilienhaus wurde 1963 erbaut und im Jahr 2001 durch eine Aufstockung mit Spitzdach erweitert. Dabei entstand ein zusätzliches Obergeschoss sowie ein ausgebautes Dachgeschoss (ca. 30 m² Nutzfläche). Die angebotene Wohnung wurde im Zuge dieser Maßnahme errichtet.
5. Wichtige Fakten für Kapitalanleger:
-Nettokaltmiete p.a. ca. 8.760,00€ für die Wohnung
-Betriebskosten p.a. ca. 3.300,00 € - davon umlagefähig: ca. 2.400,00€

Angaben zum Energieausweis:
Energieausweistyp: Bedarfsausweis
Energieeffizienzklasse: "D"
Energiekennwert: 107,2 kWh
Ausweis erstellt am: 10.03.2022
Ausweis gültig bis: 09.03.2032
Energieträger: Gas-Zentralheizung

Bitte beachten Sie, dass wir Ihnen das ausführliche Exposé nur zuschicken, sofern uns sämtliche persönliche Daten
(Name, Adresse, Emailadresse & Rufnummer) von Ihnen vorliegen.

Energieausweisangaben

A+
A
B
C
D
E
F
G
H
  • Enerigeausweistyp Bedarfsausweis
  • Energiekennwert 107 KWh(m²*a)
  • Energieeffizienzklasse D
  • Energie mit Warmwasser ja
  • Energieausweis erstellt am 10.03.2022
  • Energieausweis gültig bis 09.03.2032
  • Heizungsart Zentralheizung
  • Befeuerung / Energieträger Gas

Grundrisse

Wie können wir Ihnen behilflich sein?

Herzlichen Dank für Ihre Anfrage.

Wir werden diese so schnell wie möglich bearbeiten.

Wie können wir Ihnen behilflich sein?
* Pflichtfeld